Send us an Enquiry
Enquire about this listing or request viewing:
Freehold Guide Price £850,000.
Fully let investment opportunity comprising two adjacent shops with four flats above (sold on long leases), set within an attractive period building.
Currently producing £57,500 p.a. (Rent Review pending on No 370).
The properties are conveniently located in this fabulous street with an excellent range of cafes, restaurants and shops. Wandsworth Town Station is situated at the end of the road, with with it's frequent direct services to Waterloo, and there is parking close by.
The shop at No 370 is arranged over ground floor & basement and was let to First Union Property Company Ltd, who had been in occupation since 2001. They have since been acquired by Leaders Romans Group (245 branches). The lease was granted in August 2016 for a term of 12 years, expiring 9th August 2028 with 4 yearly Rent Reviews. The current rent is £24,000 p.a. plus a service charge of £1,160 p.a. The 2020 Rent Review is now being assessed by our clients surveyor. The lease is drafted within the Landlord and Tenant Act 1954 and there are tenant only options to break at the 4th and 8th anniversaries, with at least two months prior written notice.
The unit is nicely presented throughout and comprises an office area and W.C. on the ground floor with two further offices on the lower ground floor measuring a total of approximately 700 sq ft. Additionally there is a basement with good headroom of approximately 447 sq ft providing kitchen, office and store room. Total area of approximately 1147 sq ft.
No 372 is also arranged over ground floor & basement and is let to private individual trading as a Dental practice. A 15 year, effectively FRI, lease was granted on 25th June 2010 with 5 yearly Rent Reviews. The 2020 Rent Review has recently been agreed at £32,000 p.a. and there is a service charge of £1,200 p.a. There was a single option to break on 25th October 2020 and the lease is drafted within the Landlord and Tenant Act 1954.
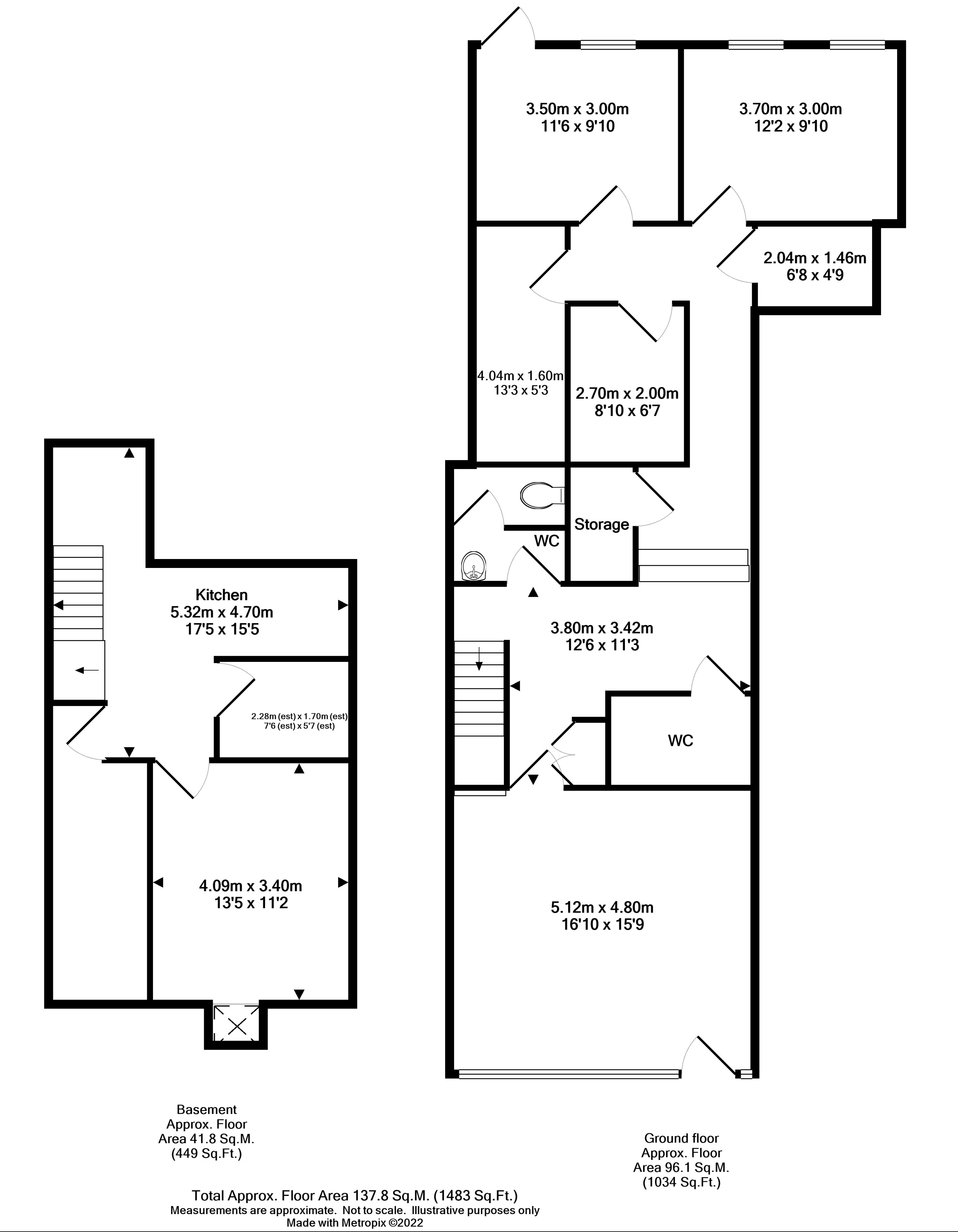
This unit is also very well presented and is divided into a reception area at ground floor with treatment rooms and WC to lower level- approximately 1034 sq ft. The basement, with good headroom, comprises store area and kitchen measuring approximately 449 sq ft. Total area of approximately 1483 sq ft.
Please note, some measurements estimated due to restricted access.
The four upper flats were sold on 125 year leases in June 2007 with ground rents of £250 p.a. per flat for the first 25 years and £500 p.a. thereafter.
Unit 370- EPC Rating E.
Unit 372- EPC Rating C.
Please do not disturb the tenants and view only by prior appointment through us- early viewings recommended.
Enquire about this listing or request viewing: